
Welcome to the 989
Sunny Days is what we named our delightful one bedroom condo @ the 989. This unit offers city views and once you see it, you’ll love it.
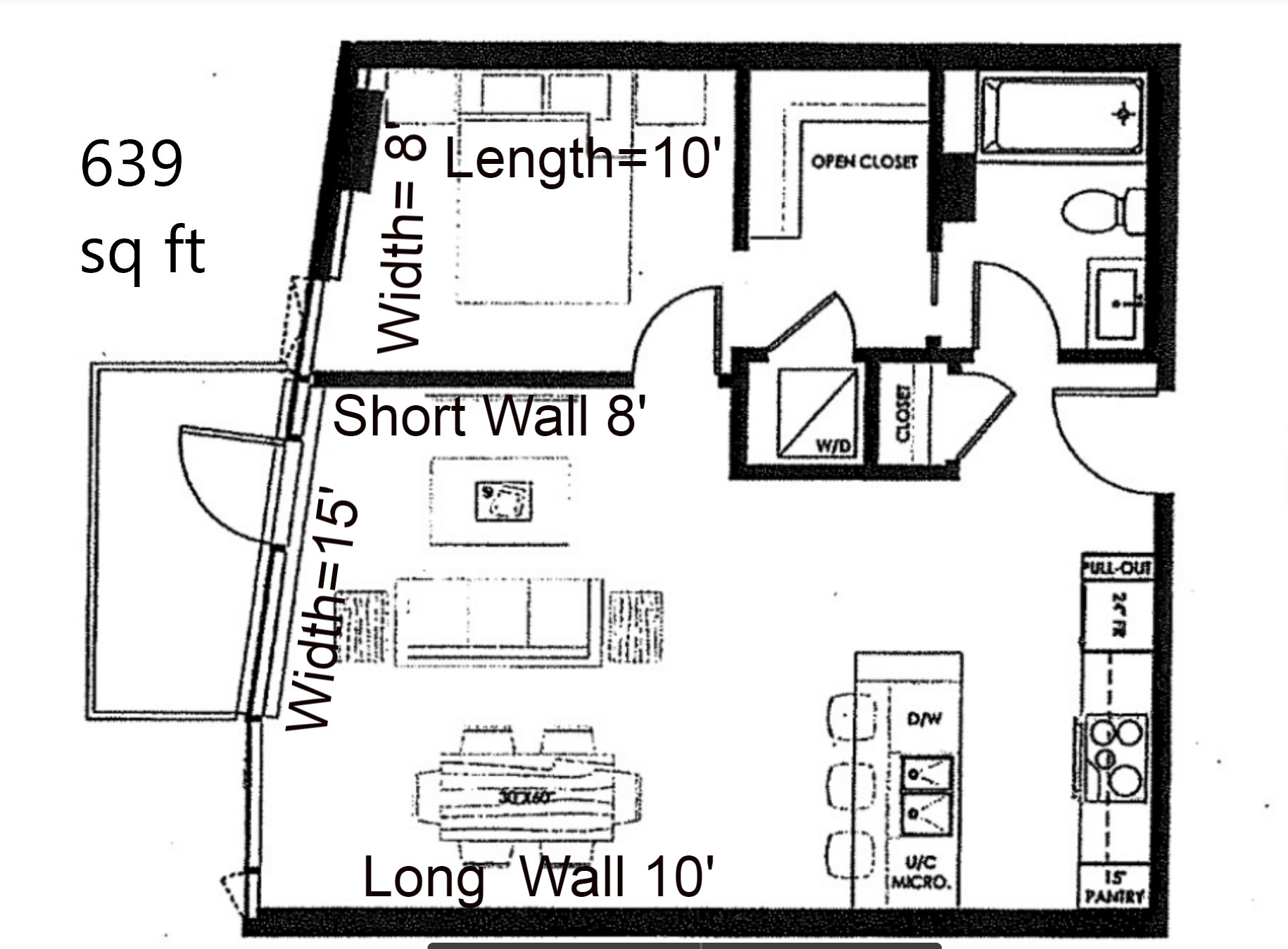
Live well. This 15th floor unit rents unfurnished so come and make it your own.
Conveniently located in the Harris Green area close to downtown with London Drugs, eateries, Market on Yates, Cobbs bakery and more at your doorstep..
The building itself is community oriented with a mix of young and middle-aged professionals and active retirees.
the KITCHEN
Cook with ease in this kitchen designed for efficiency.
- induction cook top
- electric built-in oven
- fridge/freezer
- Dishwasher
- vertical pantry
- microwave
- W-D



Bedroom & bathroom
The bedroom will accommodate a queen bed and one night stand. No need to cram a dresser in there because the custom closet (all cedar) offers plenty of built-in drawers and cupboards for storage.
Bath is a 3 piece: tub/shower combo, low-flow toilet and undermount sink.

amenities
- community courtyard
- secure underground parking
- secure entry and elevators


Rental Policies
- Pets (small dog, cat) may be accepted
- the unit is SMOKE FREE and the building prohibits smoking on balconies and shared spaces (which is enforced)
- suits up to 2 persons
- Viewing by appointment for pre-qualified tenants
- no parties or events
rates and fees
Your initial layout will include:
- first month rent $2350
- refundable damage deposit (1/2 month rent)
- One time building fee (move-in & out) $250
- Departure Cleaning fee: $150 (refundable if tenant completes the final cleaning)












